Verkocht:St.Quirinusstraat 80, 6464 AG Kerkrade - Foto
Verkocht
+43

St.Quirinusstraat 80 6464 AG Kerkrade

  • Woonhuis
  • 4 kamers
  • 3 slaapkamers
  • 1 badkamers
  • Bouwjaar 1985
  • 150 m² perceeloppervlakte
  • 82 m² gebruiksoppervlakte
  • A Energielabel A

Beschrijving

Perfecte starterwoning!
In rustige buurt, aan de rand van het groen gelegen keurig afgewerkt, gemoderniseerd en onderhouden eengezinswoning met ruime serre, stenen berging, extra aangrenzende houten tuinberging en achtertuin, welke ook vanuit de achterzijde te bereiken is".
Centraal bereikbaar met voldoende faciliteiten in de nabije omgeving.
Voldoende parkeergelegenheid in de wijk zowel aan voor als achterzijde.

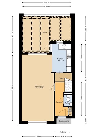
INDELING:
Begane grond:
Entree.
Ontvangsthal v.v. plavuizenvloer, vloerluik naar kruipruimte en opgang/trap naar eerste verdieping.
Geheel betegeld toiletruimte met fontein.
Woonkamer voorzien van fraaie laminaatvloer en airconditioning.
Half open keuken v.v. laminaatvloer en keurige witte aanbouwinstallatie incl. apparatuur, te weten combi-oven, koelkast en wasemkap. Ruime trapberging.
Royaal overdekt terras (geheel afsluitbaar voor weersinvloeden) en fijne tuin alwaar een ruime stenen berging met aangrenzende houten berging. De tuin heeft eveneens een achterom.

Eerste verdieping:
Overloop.
3 Slaapkamers.
Slaapkamer 1 v.v. een laminaatvloer en rolluiken.
Slaapkamer 2 v.v. een laminaatvloer en rolluiken.
Slaapkamer 3 v.v. een laminaatvloer en rolluiken.
Betegelde badkamer voorzien van douche, badkamermeubel, 2e (vrij hangend) toilet met inbouwreservoir en aansluitpunten voor wasmachine en droger.

Tweede verdieping:
Bereikbaar via vlizo trap vanaf de overloop.
De nokhoogte bedraagt circa 1.87 meter.
Berging voorzien van dakraam en met opstelling Cv combi installatie (Vailiant Eco Tec Plus, 2025, eigendom) en mechanische ventilatie.

Algemeen:
De woning wordt keurig bewoond en kent een goed onderhoudsniveau.
Voorzien van rolluiken.
Voorzien van zonnepanelen 8 stuks (eigendom)
Kunststof kozijnen v.v. dubbele beglazing (2013)

AANSPRAKELIJKHEID
Het bovenstaande behelst slechts een globale omschrijving van een object. De informatie berust deels op door derden aan onze kantoren verstrekte gegevens. Met de meeste zorg hebben wij deze informatie verwerkt doch kunnen ten aanzien van de juistheid van deze gegevens geen aansprakelijkheid aanvaarden. Aan deze brochure kunnen geen rechten worden ontleend.

ONTBINDING
De termijn die wordt opgenomen voor eventuele (overeengekomen) ontbindende voorwaarden (b.v. financiering) is in de regel circa 4 weken na het sluiten van de mondelinge wilsovereenkomst.

ZEKERHEIDSSTELLING
De waarborgsom/bankgarantie is 10% van de koopsom. De koper dient deze binnen 7 dagen na definitieve overeenkomst bij de desbetreffende notaris te deponeren.

ONDERZOEKSPLICHT VAN DE KOPER
Koper is te allen tijde gerechtigd voor eigen rekening een bouwkundige keuring te (laten) verrichten dan wel andere adviseurs te raadplegen teneinde een goed inzicht te verkrijgen in de staat van onderhoud.

Kaart

Kenmerken

Overdracht

Referentienummer
563
Vraagprijs
€ 239.000,- k.k.
Status
Verkocht
Aanvaarding
In overleg
Aangeboden sinds
Maandag 1 december 2025
Laatste wijziging
Vrijdag 27 februari 2026

Bouw

Type object
Woonhuis, eengezinswoning, tussenwoning
Soort bouw
Bestaande bouw
Bouwperiode
1985
Dakbedekking
Dakpannen
Type dak
Zadeldak
Isolatievormen
Dakisolatie
Dubbel glas
Muurisolatie
Volledig geïsoleerd

Oppervlaktes en inhoud

Perceeloppervlakte
150 m²
Woonoppervlakte
82,26 m²
Woonkameroppervlakte
25,08 m²
Keukenoppervlakte
5,05 m²
Inhoud
332 m³
Oppervlakte overige inpandige ruimten
6,39 m²
Oppervlakte externe bergruimte
31,36 m²
Oppervlakte gebouwgebonden buitenruimte
0,99 m²

Indeling

Aantal bouwlagen
3
Aantal kamers
4 (waarvan 3 slaapkamers)
Aantal badkamers
1 (en 1 apart toilet)

Locatie

Ligging
Aan rustige weg
Dichtbij openbaar vervoer
In woonwijk
Nabij school

Tuin

Type
Afgesloten tuin
Hoofdtuin
Ja
Oriëntering
Noord-oost
Heeft een achterom
Ja
Staat
Goed onderhouden

Energieverbruik

Energielabel
A

CV ketel

CV ketel
Vaillant Eco Tec Plus
Warmtebron
Gas
Bouwjaar
2025
Combiketel
Ja
Eigendom
Eigendom

Uitrusting

Warm water
CV-ketel
Verwarmingssysteem
Centrale verwarming
Keukenvoorzieningen
Inbouwapparatuur
Badkamervoorzieningen
Douche
Toilet
Wastafelmeubel
Heeft airco
Ja
Heeft kabel-tv
Ja
Tuin aanwezig
Ja
Beschikt over een internetverbinding
Ja
Heeft rolluiken
Ja
Heeft schuur/berging
Ja

Kadastrale gegevens

Kadastrale aanduiding
Kerkrade G 4077
Perceeloppervlakte
150 m²
Omvang
Geheel perceel
Eigendomsituatie
Eigen grond

Benieuwd wat jouw woning waard is?

Gratis waardebepaling