Verkocht:Frisostraat 46, 6433 GR Hoensbroek - Foto
Verkocht
+55

Frisostraat 46 6433 GR Hoensbroek

  • Woonhuis
  • 4 kamers
  • 3 slaapkamers
  • 1 badkamers
  • Bouwjaar 1952
  • 395 m² perceeloppervlakte
  • 95 m² gebruiksoppervlakte
  • F Energielabel F

Beschrijving

Instapklaar gerenoveerd en uitgebouwd half vrijstaand woonhuis met grote garage (incl. smeerput) en circa 30m diepe tuin met houten tuinhuis!

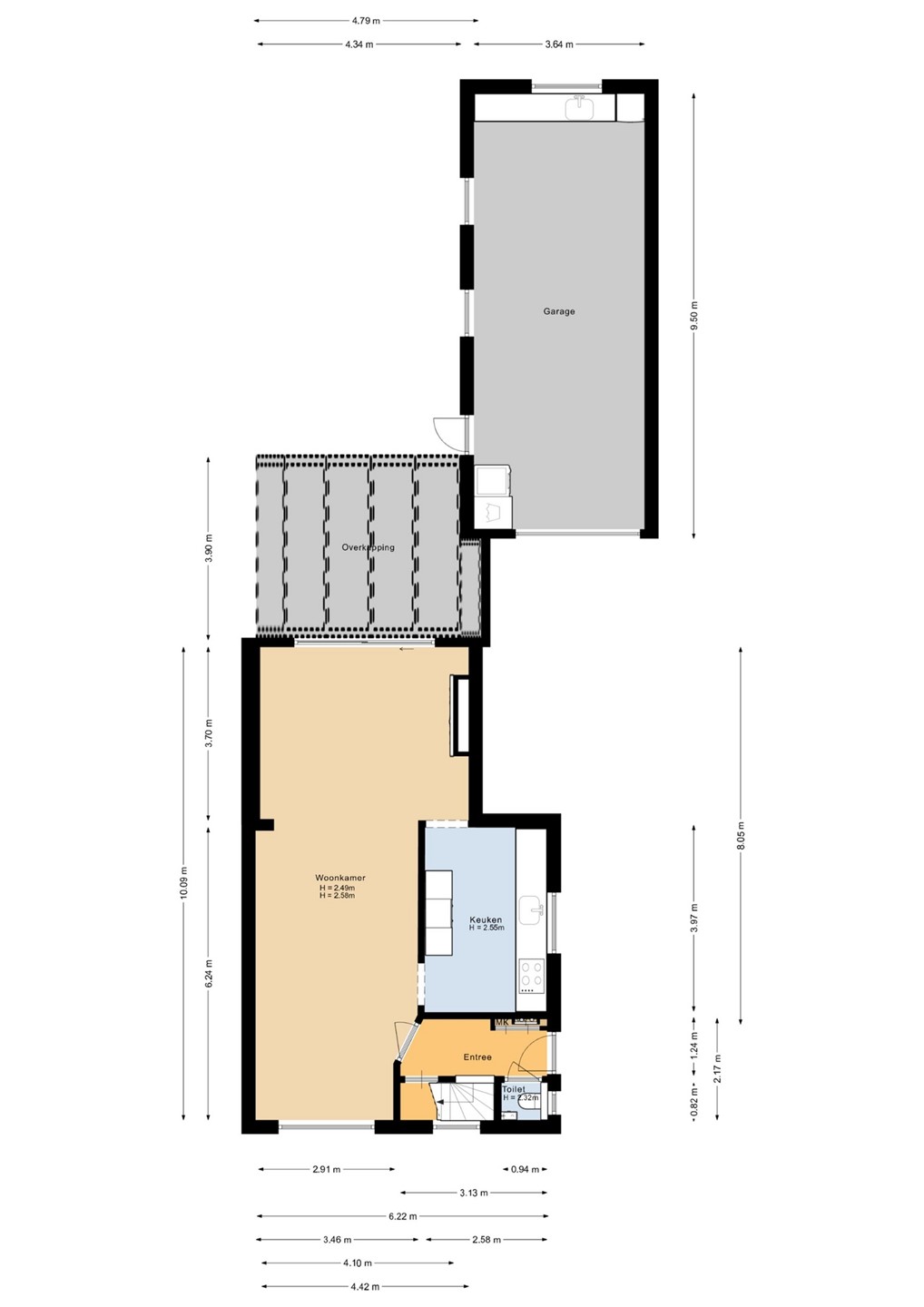
Indeling:
Kelder:
Plafondhoogte: 1.83m
Provisieruimte.

Begane grond:
Hal/entree v.v. plavuizenvloer, Moderne betegelde toiletruimte met fonteintje, Meterkast (vernieuwd).
Riante L-woonkamer v.v. fraaie parketlaminaatvloer van maar liefst 9.50m diep (incl. aanbouw), airconditioning en moderne sfeerhaard en royale schuifpui naar het royale overdekte terras en de mooi aangelegde tuin met achtergelegen houten tuinhuis.
Halfopen keuken v.v. moderne hoogwaardige aanbouwkeuken incl. inbouwapparatuur, te weten, vaatwasser, koel/vriescombinatie, inductiekookplaat en design wasemkap en v.v. plavuizenvloer.
Zeer ruime achtergelegen stenen garage (9.50m diep) inclusief smeerput, elektrische sectionaalpoort, keukenblok en aansluitpunten voor wasmachine en droger.

1e verdieping:
De gehele verdieping is voorzien van h/h houten kozijnwerk met dubbele beglazing en grotendeels rolluiken.
Overloop v.v. laminaatvloer.
Slaapkamer 1 v.v. laminaatvloer en muurkast
Slaapkamer 2 v.v. laminaatvloer, airconditioning en rolluiken.
Slaapkamer/kleedkamer 3 v.v. laminaatvloer en rolluiken
Geheel betegelde doucheruimte v.v. wastafelmeubel en douche.

2e verdieping :
Via vlizotrap te bereiken geïsoleerde bergzolder met standplaats c.v.-combi (eigendom, bwj. 1999)

- Bouwjaar: 1952
- Woonopp: ca. 95m2
- Bruto inhoud woonhuis: 416m3
- Dakisolatie
- Compleet v.v. dubbel glas in ged .kunststof, aluminium en hardhouten kozijnwerk.
- C.v-combi installatie (eigendom, 1999)
- Airconditioning
- Zonnepanelen (eigendom, 11 stuks)
- Energienota €65,- p/mnd.!
- Perceel: 395m2
- Achtertuin: ca. 30m1 diep

Ter bescherming van de belangen van zowel koper als verkoper, wordt uitdrukkelijk gesteld dat een koopovereenkomst met betrekking tot deze onroerende zaak eerst dan tot stand komt nadat koper en verkoper de koopovereenkomst hebben getekend (“schriftelijkheidsvereiste”).

Indien er in de woning huurtoestellen aanwezig zijn zoals CV-ketel, boiler, zonnepanelen, mechanische ventilatie etc. dan dienen deze door de koper te worden overgenomen.
De termijn die wordt opgenomen voor eventuele (overeengekomen) ontbindende voorwaarden (bv. Financiering) is in de regel 4 tot 6 weken na het sluiten van de mondelinge wilsovereenkomst.

De waarborgsom/bankgarantie is 10% van de koopsom. De koper dient deze 3 dagen ná het vervallen van de ontbindende voorwaarden bij de desbetreffende notaris te deponeren.

Koper is te allen tijde gerechtigd voor eigen rekening een bouwkundige keuring te (laten) verrichten dan wel andere adviseurs te raadplegen teneinde een goed inzicht te verkrijgen over de staat van onderhoud.

Deze informatie is door ons, Zuyderhuys Makelaardij met de nodige zorgvuldigheid samengesteld. Onzerzijds wordt echter geen enkele aansprakelijkheid aanvaard voor enige onvolledigheid, onjuist of anderszins, dan wel de gevolgen daarvan. Alle opgegeven maten en oppervlakten zijn indicatief.

Kaart

Kenmerken

Overdracht

Referentienummer
540
Vraagprijs
€ 279.000,- k.k.
Water
€ 12,80
Status
Verkocht
Aanvaarding
In overleg
Aangeboden sinds
Vrijdag 26 september 2025
Laatste wijziging
Zaterdag 29 november 2025

Bouw

Type object
Woonhuis, eengezinswoning, half vrijstaande woning
Soort bouw
Bestaande bouw
Bouwperiode
1952
Dakbedekking
Dakpannen
Type dak
Zadeldak
Isolatievormen
Dakisolatie
Dubbel glas
Spouwmuren
Vloerisolatie

Oppervlaktes en inhoud

Perceeloppervlakte
395 m²
Woonoppervlakte
95 m²
Woonkameroppervlakte
48,33 m²
Keukenoppervlakte
12,43 m²
Inhoud
416 m³
Oppervlakte overige inpandige ruimten
18,18 m²
Oppervlakte externe bergruimte
39,95 m²
Oppervlakte gebouwgebonden buitenruimte
17,88 m²

Indeling

Aantal bouwlagen
3 (en 1 kelder)
Aantal kamers
4 (waarvan 3 slaapkamers)
Aantal badkamers
1 (en 1 apart toilet)

Locatie

Ligging
Aan rustige weg
Dichtbij openbaar vervoer
In woonwijk
Nabij school
Nabij snelweg

Tuin

Type
Achtertuin
Hoofdtuin
Ja
Oriëntering
Zuid-west
Heeft een achterom
Ja
Staat
Goed onderhouden

Energieverbruik

Energielabel
F

CV ketel

CV ketel
Nefit Ecomline
Warmtebron
Gas
Bouwjaar
1999
Combiketel
Ja
Eigendom
Eigendom

Uitrusting

Aantal parkeerplaatsen
2
Warm water
CV-ketel
Verwarmingssysteem
Airconditioning
Centrale verwarming
Elektrische verwarming
Keukenvoorzieningen
Inbouwapparatuur
Badkamervoorzieningen
Douche
Wastafel
Parkeergelegenheid
Vrijstaande stenen garage
Heeft airco
Ja
Heeft kabel-tv
Ja
Tuin aanwezig
Ja
Heeft een garage
Ja
Beschikt over een internetverbinding
Ja
Heeft rolluiken
Ja
Heeft een dakraam
Ja
Heeft een schuifpui
Ja
Heeft zonnepanelen
Ja

Kadastrale gegevens

Kadastrale aanduiding
Heerlen c 5301
Perceeloppervlakte
395 m²
Omvang
Geheel perceel
Eigendomsituatie
Eigen grond

Benieuwd wat jouw woning waard is?

Gratis waardebepaling