Verkocht onder voorbehoud:Vrijheerenberg 7, 6414 EC Heerlen - Foto
Verkocht onder voorbehoud
+50

Vrijheerenberg 7 6414 EC Heerlen € 335.000,- k.k.

  • Woonhuis
  • 5 kamers
  • 4 slaapkamers
  • 1 badkamers
  • Bouwjaar 1945
  • 129 m² perceeloppervlakte
  • 157 m² gebruiksoppervlakte
  • C Energielabel C

Beschrijving

Absoluut instapklaar geheel hoogwaardig gerenoveerd tussengelegen geheel onderkelderd ruim woonhuis met 4 slaapkamers!

Indeling:
Kelder:
Plafondhoogte: 2.35m
Verdeelhal : (2.83mx1.73m)
Kelderruimte 1: (3.12mx3.20m) met toegang naar kleinere afsluitbare berging (0.93mx1.75m)
Kelderruimte 2: (4.50mx2.46m) alwaar C.v.-combi installatie Vailliant EcoTec Pure (2022, eigendom)
Kelderruimte 3: (2.62mx1.57m)
Kelderruimte 4: 1.75mx1.96m)

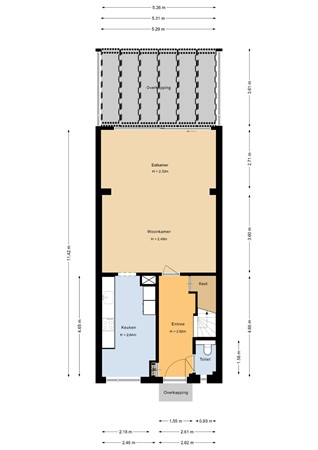
Begane grond:
Royale entree/hal met plavuizenvloer, geheel betegelde luxe toiletruimte, meterkast (geheel vernieuwd).
Royale woonkamer met plavuizenvloer, airconditioning en grote schuifpui (incl. vliegenhor) naar de ruime aangrenzende overkapping en geheel beklinkerde onderhoudsvriendelijke tuin met achterom.
Half open keuken v.v. een plavuizenvloer en luxe en moderne aanbouwkeuken (2022) incl. inbouwapparatuur, te weten, combi-oven, koelkast, vaatwasser, 4-pits inductie kookplaat en wasemkap
De gehele begane grond is voorzien van een vloerverwarming.

1e verdieping:
De gehele verdieping is voorzien van kunststof kozijnwerk met dubbele beglazing en rolluiken.
Ruime overloop v.v. laminaatvloer.
Zeer luxe en hoogwaardig afgewerkte badkamer v.v. inloopdouche met thermostaatkraan, 2e toilet, wandradiator, duo ligbad en dubbele wastafel met ombouw.
Separate wasruimte met aansluitpunten voor wasmachine en droger
1 zeer ruime ouderslaapkamer A/Z v.v. laminaatvloer en airconditioning.

2e verdieping :
Overloop voorzien van laminaatvloervloer.
1 riante slaapkamer A/Z v.v. dakkapel v.v. kunststof kozijnwerk en dubbele beglazing (incl. hor)
1 slaapkamer v.v. laminaatvloer en vaste trap naar de 3e verdieping.

3e verdieping:
Via vaste trap bereikbaar.
1 slaapkamer/logeerkamer v.v. laminaatvloer en dakraam (incl. screen)

- Bouwjaar: 1945
- Woonopp: 140M2!!
- Bruto inhoud woonhuis: 642m3
- Dakisolatie (2022)
- Compleet v.v. dubbel glas in kunststof kozijnwerk. (2013)
- 15 zonnepanelen (eigendom)
- C.v-combi installatie (Vaillant EcoTec Pure (eigendom, bwj. 2022)
- Airconditioning (2023)
- Perceel: 129m2
- Achtertuin: ca. 7.5m1 diep en ca.5.50m1 breed
- Vloerverwarming gehele begane grond

Ter bescherming van de belangen van zowel koper als verkoper, wordt uitdrukkelijk gesteld dat een koopovereenkomst met betrekking tot deze onroerende zaak eerst dan tot stand komt nadat koper en verkoper de koopovereenkomst hebben getekend (“schriftelijkheidsvereiste”).

Indien er in de woning huurtoestellen aanwezig zijn zoals CV-ketel, boiler, zonnepanelen, mechanische ventilatie etc. dan dienen deze door de koper te worden overgenomen.
De termijn die wordt opgenomen voor eventuele (overeengekomen) ontbindende voorwaarden (bv. Financiering) is in de regel 4 tot 6 weken na het sluiten van de mondelinge wilsovereenkomst.

De waarborgsom/bankgarantie is 10% van de koopsom. De koper dient deze 3 dagen ná het vervallen van de ontbindende voorwaarden bij de desbetreffende notaris te deponeren.

Koper is te allen tijde gerechtigd voor eigen rekening een bouwkundige keuring te (laten) verrichten dan wel andere adviseurs te raadplegen teneinde een goed inzicht te verkrijgen over de staat van onderhoud.

Deze informatie is door ons, Zuyderhuys Makelaardij met de nodige zorgvuldigheid samengesteld. Onzerzijds wordt echter geen enkele aansprakelijkheid aanvaard voor enige onvolledigheid, onjuist of anderszins, dan wel de gevolgen daarvan. Alle opgegeven maten en oppervlakten zijn indicatief.

Kaart

Kenmerken

Overdracht

Vraagprijs
€ 335.000,- k.k.
Inrichting
Niet gestoffeerd
Inrichting
Niet gemeubileerd
Status
Verkocht onder voorbehoud
Aanvaarding
In overleg
Aangeboden sinds
Maandag 26 mei 2025
Laatste wijziging
Vrijdag 5 december 2025

Bouw

Type object
Woonhuis, eengezinswoning, tussenwoning
Soort bouw
Bestaande bouw
Bouwperiode
1945
Dakbedekking
Dakpannen
Type dak
Zadeldak
Keurmerken
Energie prestatie advies
Isolatievormen
Dakisolatie
Dubbel glas

Oppervlaktes en inhoud

Perceeloppervlakte
129 m²
Woonoppervlakte
157 m²
Woonkameroppervlakte
34,65 m²
Keukenoppervlakte
11,39 m²
Inhoud
590 m³
Oppervlakte overige inpandige ruimten
36 m²

Indeling

Aantal bouwlagen
4 (en 1 kelder)
Aantal kamers
5 (waarvan 4 slaapkamers)
Aantal badkamers
1 (en 1 apart toilet)

Tuin

Type
Achtertuin
Hoofdtuin
Ja
Oriëntering
Zuiden
Heeft een achterom
Ja
Staat
Prachtig aangelegd

Energieverbruik

Energielabel
C

CV ketel

CV ketel
Vaillant Ecotec Pure
Warmtebron
Gas
Bouwjaar
2022
Combiketel
Ja
Eigendom
Eigendom

Uitrusting

Warm water
CV-ketel
Verwarmingssysteem
Airconditioning
Centrale verwarming
Keukenvoorzieningen
Inbouwapparatuur
Badkamervoorzieningen
Inloopdouche
Ligbad
Toilet
Wastafel
Wastafelmeubel
Heeft airco
Ja
Heeft kabel-tv
Ja
Tuin aanwezig
Ja
Telefoonaansluiting aanwezig
Ja
Beschikt over een internetverbinding
Ja
Heeft rolluiken
Ja
Heeft een dakraam
Ja
Heeft een schuifpui
Ja
Heeft zonnecollectoren
Ja

Kadastrale gegevens

Kadastrale aanduiding
Heerlen B 7960
Perceeloppervlakte
129 m²
Omvang
Geheel perceel
Eigendomsituatie
Eigen grond

Benieuwd wat jouw woning waard is?

Gratis waardebepaling