Koop:Eiswinkel 23, 6471 CC Eygelshoven - Foto
+24

Eiswinkel 23 6471 CC Eygelshoven € 275.000,- k.k.

  • Woonhuis
  • 5 kamers
  • 4 slaapkamers
  • 1 badkamers
  • Bouwjaar 1977
  • 285 m² perceeloppervlakte
  • 112 m² gebruiksoppervlakte
  • C Energielabel C

Beschrijving

Mooie 2 onder 1 kap woning in de wijk Vijverpark aan de rand van Eygelshoven centrum. Met een woonoppervlakte van 111,8m2 , 4 slaapkamers en een ruime zolder is er voldoende leefruimte. En de grote serre maakt het extraatje aan deze woonplek.

De woning is voorzien van een royale woonkamer met zithoek en eetgelegenheid. Een open keuken in L-opstelling, Vier slaapkamers. Een nette badkamer met aparte douche en ligbad en een ruime bergzolder met mogelijkheid voor een extra kamer of hobbyruimte.

Eiswinkel is een rustige straat. Met het centrum van Eygelshoven op 800m lopen. Mis ook niet de markt op zaterdag. Het is een aanrader. De BSO en speeltuintje Veldhof zijn zo’n 5 minuten lopen verwijderd en dagelijkse voorzieningen binnen bereik.
Natuurpark Haanrade is een goed vertrekpunt voor prachtige fietstochten en vandaaruit ben je ook in luttele minuten over de Duitse grens.

Via de N300 richting Landgraaf brengt je richting Brunssum, Landgraaf en verder, of richting Heerlen over de N281 naar Maastricht en verder.

INDELING
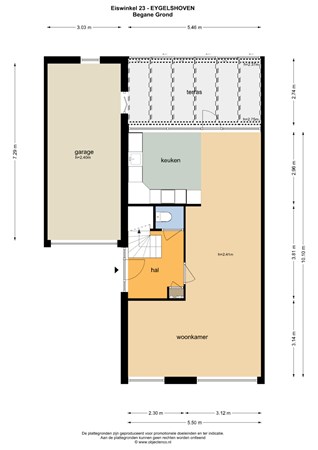
Begane grond:
Ontvangsthal met garderobe, toilet, open trap en toegang tot de woonkamer (1010 x 555cm-breedste punt). Op de vloer in de woonkamer ligt een Rosa graniet (zoals ook in keuken en hal) en de wanden zijn voorzien van een speciaal behang met reliëf.

De open keuken is voorzien van een hoekopstelling en uitgerust met verschillende (Miele) inbouwapparaten: 2x 2-pitsgaskookzones, 1x grillplaat, koeler, vaatwasmachine en afzuigunit met directe afvoer naar buiten. Het werkblad heeft een grote spoelbak met kraan en dezelfde kleur vinden we terug in de achterwand. Onderhoud is geen probleem meer.
Een verrassing bevindt zich in één van de keukenkasten. Mocht je werkblad tekort komen, dan is hierin de oplossing te vinden. Vraag er naar bij de bezichtiging.

Het overdekt terras over de gehele breedte van het huis heeft een glazen schuifpui welke ’s zomers geheel open is te schuiven. Hierdoor kan in zomer en winter genoten worden van de buitenlucht. Lange zomeravonden zijn gewaarborgd en fijne wintermiddagen liggen in het vooruitzicht.

1e Verdieping:
Overloop waaraan de 4 slaapkamers en de badkamer grenzen. 2 Slaapkamer aan de voorzijde (383 x 312cm/469 x 232cm). Aan de achterzijde de andere 2 (322 x 311cm/322 x 229cm). De kleinste kamer heeft momenteel een aansluiting voor wasmachine en droger.

In de volledig in natuursteen uitgevoerde badkamer is het goed vertoeven met de aparte douche en het ligbad. Relaxen in eigen huis. Het toilet en de wastafel met meubelombouw maken het geheel compleet.

Zolder:
Deze ruimte bestaat momenteel uit 1 bergruimte waarin ook de CV-ketel is geplaatst.

Tuin:
De voortuin met oprit naar de stenen garage (729 x 303cm-plaats voor 1 auto en fietsen en berging) is netjes aangelegd. De achtertuin, welke buitenom is te bereiken via de garage, is dit ook. Een mooi bankirai terras, diverse grindpaden, een mooie vijver en de diversiteit aan planten tonen de passie waarmee het is aangelegd.

BIJZONDERHEDEN:
 Zeer ruime woning.
 Rustige en centrale ligging.
 Zomer- en winterserre.
 Aangelegde en onderhouden tuin.

KENMERKEN
Bouwjaar: 1977
Inhoud: 543,7 m³
Woonoppervlakte: 111,8 m²
Grondoppervlakte: 285 m²

Isolatievoorzieningen: isolerende beglazing in kunststof kozijnen
Energielabel: C, geldig tot 06-05-2034
CV-ketel: huur

Aanvaarding: In overleg

BEZICHTIGINGSAFSPRAAK MAKEN
Wil je deze woning graag bezichtigen?
Voor een bezichtigingsafspraak, stuur ons een mail met uw telefoonnummer: Wij maken met u een afspraak.
Van maandag t/m vrijdag zijn wij bereikbaar tussen 9:00 uur tot 17.00 uur. Ook voor andere vragen over hypotheken, verzekeringen, makelaardij en alle bijbehorende zaken.

Ter bescherming van de belangen van zowel koper als verkoper, wordt uitdrukkelijk gesteld dat een koopovereenkomst met betrekking tot deze onroerende zaak eerst dan tot stand komt nadat koper en verkoper de koopovereenkomst hebben getekend (“schriftelijkheidsvereiste”).

Indien er in de woning huurtoestellen aanwezig zijn zoals CV-ketel, boiler, zonnepanelen, mechanische ventilatie etc. dan dienen deze in overleg door de koper te worden overgenomen.

Koper is te allen tijde gerechtigd voor eigen rekening een bouwkundige keuring te (laten) verrichten dan wel andere adviseurs te raadplegen teneinde een goed inzicht te verkrijgen over de staat van onderhoud.

Deze informatie is door Zuyderhuys Makelaardij met de nodige zorgvuldigheid samengesteld. Onzerzijds wordt echter geen enkele aansprakelijkheid aanvaard voor enige onvolledigheid, onjuist of anderszins, dan wel de gevolgen daarvan. Alle opgegeven maten en oppervlakten zijn indicatief.

Kaart

Kenmerken

Overdracht

Referentienummer
435
Vraagprijs
€ 275.000,- k.k.
Inrichting
Niet gestoffeerd
Inrichting
Niet gemeubileerd
Aanvaarding
In overleg
Aangeboden sinds
Vrijdag 17 mei 2024
Laatste wijziging
Maandag 12 mei 2025

Bouw

Type object
Woonhuis, eengezinswoning, geschakelde twee onder een kap woning
Soort bouw
Bestaande bouw
Bouwperiode
1977
Dakbedekking
Dakpannen
Type dak
Zadeldak
Keurmerken
Energie prestatie advies

Oppervlaktes en inhoud

Perceeloppervlakte
285 m²
Woonoppervlakte
111,8 m²
Woonkameroppervlakte
55,55 m²
Keukenoppervlakte
6,81 m²
Inhoud
544 m³
Oppervlakte overige inpandige ruimten
44,4 m²
Oppervlakte externe bergruimte
5,1 m²
Oppervlakte gebouwgebonden buitenruimte
15,1 m²

Indeling

Aantal bouwlagen
3
Aantal kamers
5 (waarvan 4 slaapkamers)
Aantal badkamers
1 (en 1 apart toilet)

Locatie

Ligging
Aan rustige weg
In woonwijk

Tuin

Type
Voortuin
Oriëntering
Zuidoost
Staat
Normaal
Tuin 2 - Type
Achtertuin
Tuin 2 - Hoofdtuin
Ja
Tuin 2 - Oriëntering
Noord west
Tuin 2 - Heeft een achterom
Ja
Tuin 2 - Staat
Normaal

Energieverbruik

Energielabel
C

CV ketel

Warmtebron
Gas
Combiketel
Ja
Eigendom
Huur

Uitrusting

Aantal parkeerplaatsen
2
Warm water
CV-ketel
Verwarmingssysteem
Airconditioning
Centrale verwarming
Elektrische verwarming
Ventilatie methode
Natuurlijke ventilatie
Keukenvoorzieningen
Inbouwapparatuur
Badkamervoorzieningen
Douche
Ligbad
Toilet
Wastafel
Wastafelmeubel
Parkeergelegenheid
Aangebouwde stenen garage
Tuin aanwezig
Ja
Heeft een garage
Ja
Heeft een dakraam
Ja
Heeft een schuifpui
Ja

Kadastrale gegevens

Kadastrale aanduiding
Kerkrade P 746
Perceeloppervlakte
285 m²
Omvang
Geheel perceel
Eigendomsituatie
Eigen grond

Media

Plattegronden

Brochure(s) en overige bijlagen

Objectco - Meetrapport - Eiswinkel 23 - EYGELSHOVEN.pdf Download
Kadastrale kaart - Kerkrade P 746.pdf Download

Benieuwd wat jouw woning waard is?

Gratis waardebepaling