Verkocht onder voorbehoud:Treebeekstraat 46, 6446 XW Brunssum - Foto
Verkocht onder voorbehoud
+51

Treebeekstraat 46 6446 XW Brunssum € 280.000,- k.k.

  • Woonhuis
  • 4 kamers
  • 3 slaapkamers
  • 1 badkamer
  • Bouwjaar 1915
  • 243 m² perceeloppervlakte
  • 130 m² gebruiksoppervlakte
  • D Energielabel D

Beschrijving

In goede staat verkerend royaal INSTAPKLAAR woonhuis met 3 ruime slaapkamers, luxe recent gerenoveerde royale badkamer, L-woonkamer, moderne en luxe keuken en ca. 15m diepe tuin en prefab garage.

Indeling:
Kelder:
Plafondhoogte: 1.84m
Provisiekelder 3.46mx1.82m

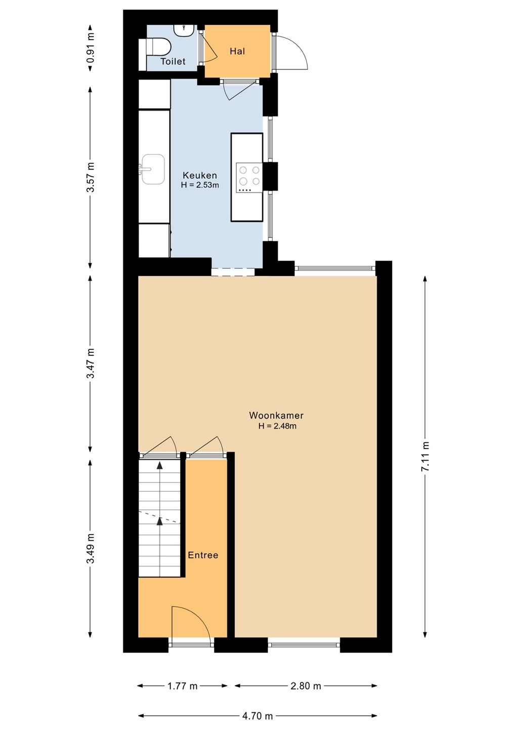
Begane grond:
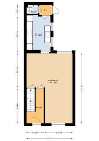
Entree/hal en meterkast.
Gezellige L-woonkamer v.v. laminaatvloer (7.11mx4.70m/2.80m)
Gesloten keuken (2.80MX3.57M)met plavuizenvloer en recent geplaatste moderne en luxe keukeninstallatie (2025) incl. inbouwapparatuur, te weten, combi-oven, vaatwasser, inductiekookplaat incl. kookveldafzuiging en koel/vriescombinatie.
Verdeelportaal met tegelvoer met toegang naar moderne betegelde toiletruimte met fonteintje en buitendeur naar het terras en de achtergelegen tuin met stenen berging en achtergelegen vrijstaande stenen (prefab beton) garage (6.33MX2.58M).

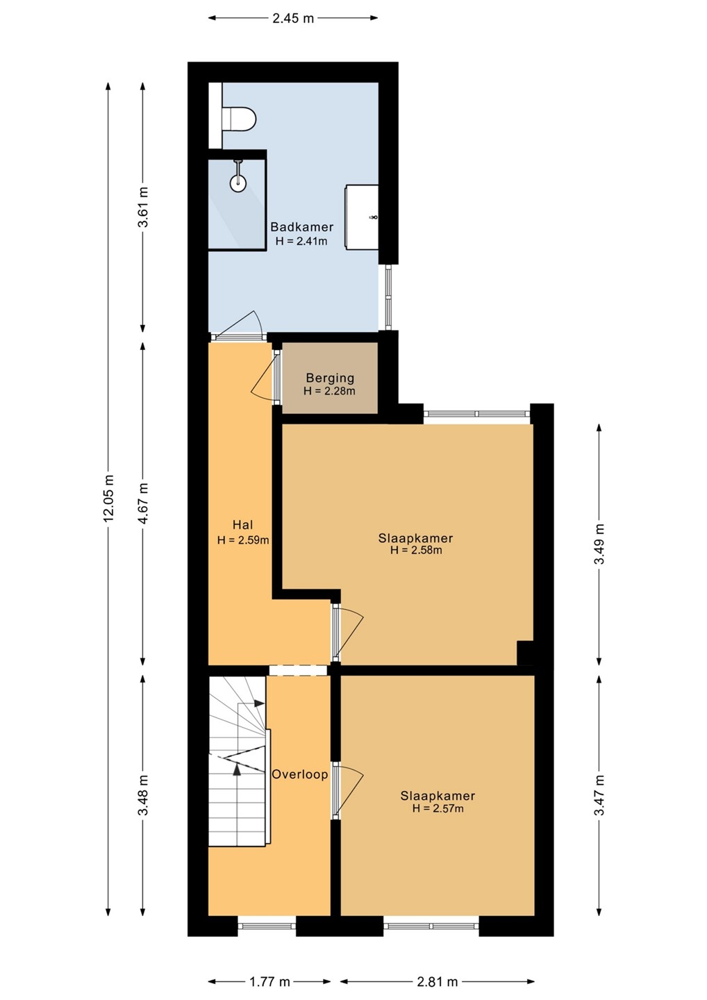
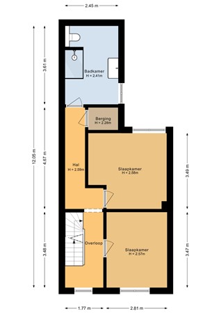
1e verdieping:
Ruime overloop,
Slaapkamer 1 V/Z v.v. laminaatvloer en rolluik (3.47MX2.81M)
Slaapkamer 2 A/Z v.v. laminaatvloer en rolluik (3.49MX3.81M)
1 separate wasberging met aansluitpunt voor wasmachine en droger
Luxe en moderne royale badkamer (2024)met ruime inloopdouche, wastafelmeubel incl. onderkasten en 2e (vrij hangend) toilet (2.45mx3.61m)

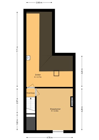
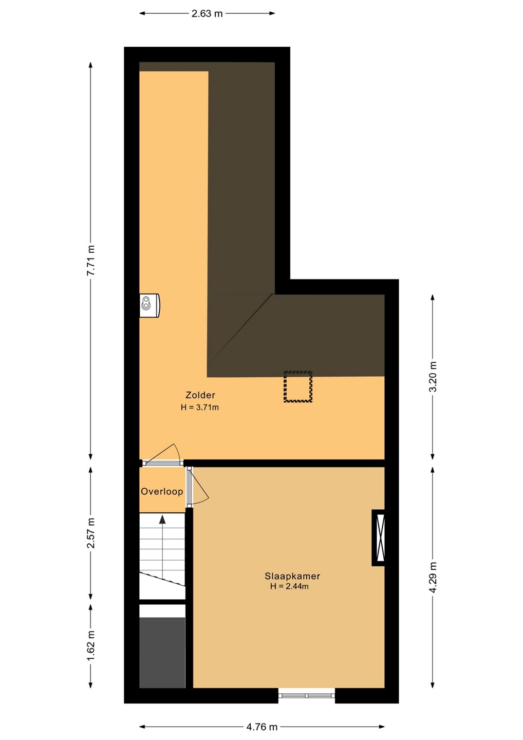
2e verdieping :
Middels vaste trap bereikbaar.
Overloop met laminaatvloer.
1 ruime slaapkamer v.v. radiator, laminaatvloer en rolluik. (4.29mx3.75m)
1 separate ruime bergzolder (4.76m/2.63mx7.71m/3.20m)met standplaats C.v-combi installatie (Intergas HR, huur uit 2014)

- De woning verkeerd in goede staat van onderhoud!
- Bouwjaar: 1915
- Woonopp: 130M2!!
- Bruto inhoud woonhuis: 490m3
- Dakisolatie
- Geheel v.v. rolluiken
- Compleet v.v. dubbel glas in hardhouten kozijnwerk.(2008)
- C.v-combi (2014 geplaatst)
- Perceel: 243m2
- Achtertuin: ca. 15m1 diep

Ter bescherming van de belangen van zowel koper als verkoper, wordt uitdrukkelijk gesteld dat een koopovereenkomst met betrekking tot deze onroerende zaak eerst dan tot stand komt nadat koper en verkoper de koopovereenkomst hebben getekend (“schriftelijkheidsvereiste”).

Indien er in de woning huurtoestellen aanwezig zijn zoals CV-ketel, boiler, zonnepanelen, mechanische ventilatie etc. dan dienen deze door de koper te worden overgenomen.
De termijn die wordt opgenomen voor eventuele (overeengekomen) ontbindende voorwaarden (bv. Financiering) is in de regel 4 tot 6 weken na het sluiten van de mondelinge wilsovereenkomst.

De waarborgsom/bankgarantie is 10% van de koopsom. De koper dient deze 3 dagen ná het vervallen van de ontbindende voorwaarden bij de desbetreffende notaris te deponeren.

Koper is te allen tijde gerechtigd voor eigen rekening een bouwkundige keuring te (laten) verrichten dan wel andere adviseurs te raadplegen teneinde een goed inzicht te verkrijgen over de staat van onderhoud.

Deze informatie is door ons, Zuyderhuys Makelaardij met de nodige zorgvuldigheid samengesteld. Onzerzijds wordt echter geen enkele aansprakelijkheid aanvaard voor enige onvolledigheid, onjuist of anderszins, dan wel de gevolgen daarvan. Alle opgegeven maten en oppervlakten zijn indicatief.

Kaart

Kenmerken

Overdracht

Referentienummer
595
Vraagprijs
€ 280.000,- k.k.
Status
Verkocht onder voorbehoud
Aanvaarding
In overleg
Aangeboden sinds
Vrijdag 20 maart 2026
Laatste wijziging
Vrijdag 10 april 2026

Bouw

Type object
Woonhuis, eengezinswoning, tussenwoning
Soort bouw
Bestaande bouw
Bouwperiode
1915
Dakbedekking
Dakpannen
Keramisch
Type dak
Schilddak
Isolatievormen
Dakisolatie
Dubbel glas
HR-glas

Oppervlaktes en inhoud

Perceeloppervlakte
243 m²
Woonoppervlakte
130 m²
Woonkameroppervlakte
33,42 m²
Keukenoppervlakte
10 m²
Inhoud
490 m³
Oppervlakte overige inpandige ruimten
21,78 m²
Oppervlakte externe bergruimte
22,29 m²

Indeling

Aantal bouwlagen
3 (en 1 kelder)
Aantal kamers
4 (waarvan 3 slaapkamers)
Aantal badkamers
1 (en 1 apart toilet)

Locatie

Ligging
Aan rustige weg
Dichtbij openbaar vervoer
In woonwijk
Nabij school
Nabij snelweg

Tuin

Type
Achtertuin
Hoofdtuin
Ja
Oriëntering
Zuidoost
Staat
Normaal

Energieverbruik

Energielabel
D

CV ketel

CV ketel
Intergas
Warmtebron
Gas
Bouwjaar
2014
Combiketel
Ja
Eigendom
Huur

Uitrusting

Warm water
CV-ketel
Keukenvoorzieningen
Inbouwapparatuur
Badkamervoorzieningen
Inloopdouche
Toilet
Wastafelmeubel
Parkeergelegenheid
Vrijstaande stenen garage
Heeft kabel-tv
Ja
Tuin aanwezig
Ja
Heeft een garage
Ja
Telefoonaansluiting aanwezig
Ja
Beschikt over een internetverbinding
Ja
Heeft rolluiken
Ja
Heeft schuur/berging
Ja

Kadastrale gegevens

Kadastrale aanduiding
Brunssum G 1840
Perceeloppervlakte
243 m²
Omvang
Geheel perceel
Eigendomsituatie
Eigen grond

Benieuwd wat jouw woning waard is?

Gratis waardebepaling