Verkocht onder voorbehoud:Schutterstraat 27, 6443 VR Brunssum - Foto
Verkocht onder voorbehoud
+41

Schutterstraat 27 6443 VR Brunssum € 220.000,- k.k.

  • Woonhuis
  • 5 kamers
  • 4 slaapkamers
  • 1 badkamer
  • Bouwjaar 1920
  • 350 m² perceeloppervlakte
  • 125 m² gebruiksoppervlakte
  • C Energielabel C

Beschrijving

Op een goede rustige locatie en naast een groenvoorziening gelegen ruime halfvrijstaande (hoekgelegen) woning met royaal overdekt terras, 24 m1 diepe achtertuin met stenen berging en een achterom.

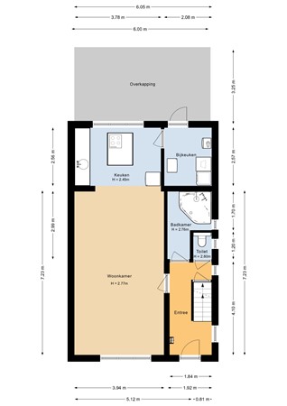
Indeling:

Begane grond:
De begane grond is nagenoeg geheel v.v. kunststof kozijnwerk en dubbele beglazing.
Hal/entree v.v. laminaatvloer, meterkast, betegelde toiletruimte en betegelde eenvoudige badkamer met hoek-bad .
Ruime doorzon woonkamer v.v. een laminaatvloer, open keuken v.v. laminaatvloer en eenvoudige keukeninstallatie excl. inbouwapparatuur. Bijkeuken v.v. tegelvloer en aansluitpunten voor wasmachine en droger alsmede standplaats C.v.-combiketel (huur). Vanuit de bijkeuken is het geheel overdekte terras aan de achterzijde bereikbaar alsmede de diepe achtertuin.

Ruime 24 meter diepe tuin en stenen berging en een achterom.

1e verdieping:
De gehele verdieping is voorzien van kunststof kozijnwerk met dubbele beglazing.
Overloop v.v. laminaatvloer en vaste wastafel,
Slaapkamer 1 A/z v.v. een laminaatvloer en muurkast
Slaapkamer 2 V/z v.v. laminaatvloer
Slaapkamer 3 A/z v.v. laminaatvloer en muurkast

2e verdieping :
Middels een vaste trap is de zolderverdieping bereikbaar alwaar ruime 4e slaapkamer met laminaatvloer.

- Bouwjaar: ca. 1920
- Woonopp: ca. 125m2
- Bruto inhoud woonhuis: 445,71M3
- Dakisolatie
- Geheel v.v. dubbel glas in kunststof kozijnwerk
- Ruime bijkeuken op begane grond!
- Goede mogelijkheid om de badkamer te verplaatsen naar de 1e verdieping
- Royaal perceel van maar liefst 350m2!

Ter bescherming van de belangen van zowel koper als verkoper, wordt uitdrukkelijk gesteld dat een koopovereenkomst met betrekking tot deze onroerende zaak eerst dan tot stand komt nadat koper en verkoper de koopovereenkomst hebben getekend (“schriftelijkheidsvereiste”).

Indien er in de woning huurtoestellen aanwezig zijn zoals CV-ketel, boiler, zonnepanelen, mechanische ventilatie etc. dan dienen deze door de koper te worden overgenomen.
De termijn die wordt opgenomen voor eventuele (overeengekomen) ontbindende voorwaarden (bv. Financiering) is in de regel 4 tot 6 weken na het sluiten van de mondelinge wilsovereenkomst.

De waarborgsom/bankgarantie is 10% van de koopsom. De koper dient deze 3 dagen ná het vervallen van de ontbindende voorwaarden bij de desbetreffende notaris te deponeren.

Koper is te allen tijde gerechtigd voor eigen rekening een bouwkundige keuring te (laten) verrichten dan wel andere adviseurs te raadplegen teneinde een goed inzicht te verkrijgen over de staat van onderhoud.

Deze informatie is door ons, Zuyderhuys Makelaardij met de nodige zorgvuldigheid samengesteld. Onzerzijds wordt echter geen enkele aansprakelijkheid aanvaard voor enige onvolledigheid, onjuist of anderszins, dan wel de gevolgen daarvan. Alle opgegeven maten en oppervlakten zijn indicatief.

Kaart

Kenmerken

Overdracht

Referentienummer
591
Vraagprijs
€ 220.000,- k.k.
Status
Verkocht onder voorbehoud
Aanvaarding
In overleg
Aangeboden sinds
Vrijdag 13 maart 2026
Laatste wijziging
Dinsdag 7 april 2026

Bouw

Type object
Woonhuis, eengezinswoning, hoekwoning
Soort bouw
Bestaande bouw
Bouwperiode
1920
Dakbedekking
Dakpannen
Type dak
Zadeldak
Isolatievormen
Dakisolatie
Dubbel glas
Muurisolatie
Spouwmuren

Oppervlaktes en inhoud

Perceeloppervlakte
350 m²
Woonoppervlakte
125 m²
Inhoud
446 m³
Oppervlakte overige inpandige ruimten
30,28 m²
Oppervlakte externe bergruimte
10,86 m²
Oppervlakte gebouwgebonden buitenruimte
19,51 m²

Indeling

Aantal bouwlagen
3 (en 1 kelder)
Aantal kamers
5 (waarvan 4 slaapkamers)
Aantal badkamers
1 (en 1 apart toilet)

Locatie

Ligging
Aan rustige weg
Dichtbij openbaar vervoer
In woonwijk
Nabij school

Tuin

Type
Achtertuin
Hoofdtuin
Ja
Oriëntering
Noord west
Heeft een achterom
Ja
Staat
Normaal

Energieverbruik

Energielabel
C

CV ketel

Warmtebron
Gas
Combiketel
Ja
Eigendom
Huur

Uitrusting

Warm water
CV-ketel
Verwarmingssysteem
Centrale verwarming
Badkamervoorzieningen
Ligbad
Wastafel
Heeft kabel-tv
Ja
Tuin aanwezig
Ja
Beschikt over een internetverbinding
Ja
Heeft schuur/berging
Ja

Kadastrale gegevens

Kadastrale aanduiding
Brunssum A 6572
Perceeloppervlakte
350 m²
Omvang
Geheel perceel
Eigendomsituatie
Eigen grond

Benieuwd wat jouw woning waard is?

Gratis waardebepaling