Verkocht:Rembrandtstraat 30B, 6445 CX Brunssum - Foto
Verkocht
+47

Rembrandtstraat 30B 6445 CX Brunssum

  • Woonhuis
  • 4 kamers
  • 3 slaapkamers
  • 1 badkamers
  • Bouwjaar 2004
  • 225 m² perceeloppervlakte
  • 98 m² gebruiksoppervlakte
  • A Energielabel A

Beschrijving

MOMENTEEL PLANNEN WIJ GEEN BEZICHTIGINGEN MEER VOOR DEZE WONING
Keurig en in goede staat van onderhoud verkerende halfvrijstaand geschakelde semi-bungalow met een inpandige bereikbare garage, omsloten onderhoudsvriendelijke tuin met overkapt terras en aangrenzende houten berging.

Indeling:

Begane grond:
Hal/entree met granieten plavuizenvloer incl. vloerverwarming, meterkast en toegangsdeur naar de inpandige garage v.v. tegelvloer en elektrisch bedienbare sectionaalpoort.
Woonkamer met granieten plavuizenvloer incl. vloerverwarming en schuifpui naar het terras en de tuin. Half open keuken met moderne keukeninstallatie incl. inbouwapparatuur, te weten, combi-oven, vaatwasser en wasemkap, inductie kookplaat en koelkast.
Vanuit de woonkamer heeft men toegang tot de verdeelhal met het trappenhuis, de geheel betegelde toiletruimte met inbouwreservoir en fonteintje en de geheel betegelde badkamer v.v. ruime douchecabine, badkamermeubel incl. dubbele wasbak.
1 royale slaapkamer v.v. granieten plavuizenvloer en ruime inbouw kledingkast.

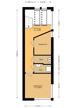
1e verdieping:
Overloop v.v. een laminaatvloer.
Slaapkamer 1 A/Z voorzien van een laminaatvloer (thans in gebruik als kleedruimte).
Slaapkamer 2 V/Z voorzien van een laminaatvloer.
Separate wasruimte v.v. aansluitpunt voor wasmachine en droger alsmede een wasbak en radiator.
C.v.-ruimte met combi-installatie (eigendom)

- Bouwjaar: 2004
- Keurig onderhouden woonhuis en daardoor instapklaar!
- Nagenoeg geheel v.v. kunststof kozijn werk en geheel v.v. dubbele beglazing
- M.u.v. de slaapkamer is de gehele begane grond v.v. vloerverwarming.
- Levensloopbestendig woonhuis
- Energielabel A
- Ruime inpandige garage
- Bruto inhoud woonhuis 471.7M3
- Woonoppervlak: 118M2 (NEN 2580 meetrapport aanwezig)
- Perceel_ 225M2. (conform Kadaster)
- Goed gelegen nabij openbaar vervoer en scholen en het centrum van Brunssum
- Aanvaarding: i.o.

De waarborgsom/bankgarantie is 10% van de koopsom. De koper dient deze, indien de verkoper en koper dit overeenkomen, binnen 2 weken nadat het financieringsvoorbehoud is verlopen bij de desbetreffende notaris te deponeren.
Ter bescherming van de belangen van zowel koper als ook verkoper wordt uitdrukkelijk gesteld dat een koopovereenkomst met betrekking tot deze onroerende zaak eerst dan tot stand komt nadat koper en verkoper de koopovereenkomst hebben getekend (schriftelijkheidsvereiste).
Indien c.v.ketel en/of warmwatervoorziening een huurtoestel is, dient koper de huurovereenkomst over te nemen.

Alle door ons kantoor verstrekte informatie omtrent onroerende zaken, moet beschouwd worden als een uitnodiging om in onderhandeling te treden, en is geheel vrijblijvend! Alle vermelde maten en afmetingen zijn slechts bij benadering. Aan deze beperkte info kunnen geen rechten worden ontleend. Indien in enige documentatie of op enige website informatie staat die niet overeen komt met de werkelijkheid, dan geldt de feitelijke situatie waarin de woning zich bevindt, zoals koper deze tijdens de bezichtiging heeft kunnen waarnemen, en wordt de woning in deze feitelijke situatie/staat verkocht. Een (eventueel) bijgevoegde plattegrond dient uitsluitend als globale indicatie/visualisatie. Hieraan kunnen uitdrukkelijk geen rechten worden ontleend.

Kaart

Kenmerken

Overdracht

Vraagprijs
€ 339.500,- k.k.
Inrichting
Niet gestoffeerd
Inrichting
Niet gemeubileerd
Status
Verkocht
Aanvaarding
In overleg
Aangeboden sinds
Dinsdag 29 juli 2025
Laatste wijziging
Donderdag 4 september 2025

Bouw

Type object
Woonhuis, bungalow, half vrijstaande woning
Soort bouw
Bestaande bouw
Bouwperiode
2004
Dakbedekking
Bitumen
Dakpannen
Type dak
Kap met plat
Isolatievormen
Volledig geïsoleerd

Oppervlaktes en inhoud

Perceeloppervlakte
225 m²
Woonoppervlakte
98 m²
Woonkameroppervlakte
28,78 m²
Keukenoppervlakte
7,09 m²
Inhoud
472 m³
Oppervlakte overige inpandige ruimten
20,22 m²
Oppervlakte externe bergruimte
4,91 m²

Indeling

Aantal bouwlagen
2
Aantal kamers
4 (waarvan 3 slaapkamers)
Aantal badkamers
1 (en 1 apart toilet)

Locatie

Ligging
Aan rustige weg
Dichtbij openbaar vervoer
In bosrijke omgeving
Nabij school

Tuin

Type
Achtertuin
Oriëntering
Oosten
Staat
Goed onderhouden

Energieverbruik

Energielabel
A

CV ketel

Warmtebron
Gas
Eigendom
Eigendom

Uitrusting

Aantal parkeerplaatsen
1
Warm water
CV-ketel
Verwarmingssysteem
Centrale verwarming
Ventilatie methode
Mechanische ventilatie
Badkamervoorzieningen
Douche
Dubbele wastafel
Wastafel
Parkeergelegenheid
Inpandige garage
Tuin aanwezig
Ja
Heeft een garage
Ja
Heeft rolluiken
Ja
Heeft een dakraam
Ja
Heeft zonwering
Ja
Heeft ventilatie
Ja

Kadastrale gegevens

Kadastrale aanduiding
Brunssum B 6844
Perceeloppervlakte
225 m²
Omvang
Geheel perceel
Eigendomsituatie
Eigen grond

Benieuwd wat jouw woning waard is?

Gratis waardebepaling