Onder bod:Prins Hendriklaan 144, 6441 AC Brunssum - Foto
Onder bod
+28

Prins Hendriklaan 144 6441 AC Brunssum € 160.000,- k.k.

  • Appartement
  • 3 kamers
  • 2 slaapkamers
  • 1 badkamer
  • Bouwjaar 1977
  • 84 m² gebruiksoppervlakte
  • C Energielabel C

Beschrijving

In de nabijheid van het Winkelcentrum van Brunssum en het Stadspark treft u dit ruim appartement op de
2e verdieping met 2 slaapkamers en balkon.

Souterrain:
Kelderberging 1.95 x 1.91

Begane grond:
Afgesloten entreepartij met brievenbussen en bellentableau.

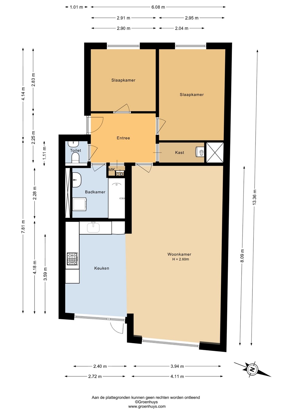
Indeling appartement:
Entree/hal 2.25 x 2.90 v.v. laminaatvloer, meterkast, videobel en betegelde toiletruimte met fonteintje.

Ruime woonkamer 4.11 x 8.09 met laminaatvloer en open verbinding naar de ruime keuken 3.59 x 2.72
met keurige aanbouwkeuken in hoekopstelling v.v. gaskookplaat, oven,
afzuigkap, koelkast (1 jaar oud) en vaatwasser.

Twee ruime slaapvertrekken welke beide zijn v.v. van een laminaatvloer en rolluiken resp. ca. 4.14 x 2.95 en 2.83 x 2.90.

Betegelde badkamer 2.40 x 2.28 met ligbad, wasmachine aansluiting en vaste wastafel.

Wasruimte met cv-combiketel 2024 (eigendom) en aansluitpunt wasautomaat.

Bijzonderheden:
• Ruim appartement op de bovenste 2e verdieping (geen bovenburen!)
• Geheel hardhouten kozijnen met dubbel glas
• rolluiken
• Nagenoeg geheel v.v. laminaatvoeren.
• Direct te aanvaarden!
• VVE bijdrage € 137,50 per maand
• Energielabel C
• Cv-installatie uit 2024 en eigendom!

De waarborgsom/bankgarantie is 10% van de koopsom. De koper dient deze binnen 2 weken nadat het financieringsvoorbehoud is verlopen bij de desbetreffende notaris te deponeren.

Ter bescherming van de belangen van zowel koper als ook verkoper wordt uitdrukkelijk gesteld dat een koopovereenkomst met betrekking tot deze onroerende zaak eerst dan tot stand komt nadat koper en verkoper de koopovereenkomst hebben getekend (schriftelijkheidsvereiste).

Indien cv-ketel en/of warmwatervoorziening een huurtoestel is, dient koper de huurovereenkomst over te nemen.

Alle door ons kantoor verstrekte informatie omtrent onroerende zaken, moet beschouwd worden als een uitnodiging om in onderhandeling te treden, en is geheel vrijblijvend!
Alle vermelde maten en afmetingen zijn slechts bij benadering. Aan deze beperkte info kunnen geen rechten worden ontleend. Indien in enige documentatie of op enige website informatie staat die niet overeen komt met de werkelijkheid, dan geldt de feitelijke situatie waarin de woning zich bevindt, zoals koper deze tijdens de bezichtiging heeft kunnen waarnemen, en wordt de woning in deze feitelijke situatie/staat verkocht. De Meetinstructie is gebaseerd op de NEN2580. De Meetinstructie is bedoeld om een meer eenduidige manier van meten toe te passen voor het geven van een indicatie van de gebruiksoppervlakte. De Meetinstructie sluit verschillen in meetuitkomsten niet volledig uit, door bijvoorbeeld interpretatieverschillen.

Kaart

Kenmerken

Overdracht

Referentienummer
601
Vraagprijs
€ 160.000,- k.k.
Servicekosten
€ 137,50
Verwarming
€ 100,-
Status
Onder bod
Aanvaarding
In overleg
Aangeboden sinds
Donderdag 9 april 2026
Laatste wijziging
Dinsdag 21 april 2026

Bouw

Type object
Appartement, portiekflat
Woonlaag
2e woonlaag
Soort bouw
Bestaande bouw
Bouwperiode
1977
Dakbedekking
Dakpannen
Type dak
Zadeldak
Isolatievormen
Dakisolatie
Dubbel glas
Muurisolatie

Oppervlaktes en inhoud

Woonoppervlakte
83,61 m²
Woonkameroppervlakte
33,25 m²
Keukenoppervlakte
11,37 m²
Inhoud
282 m³
Oppervlakte externe bergruimte
3,72 m²
Balkonoppervlakte
2,73 m²

Indeling

Aantal bouwlagen
2
Aantal kamers
3 (waarvan 2 slaapkamers)
Aantal badkamers
1 (en 1 apart toilet)

Locatie

Ligging
Aan drukke weg
Dichtbij openbaar vervoer
In centrum
Nabij school
Nabij snelweg

Energieverbruik

Energielabel
C

CV ketel

Warmtebron
Gas
Bouwjaar
2024
Eigendom
Eigendom

Uitrusting

Warm water
CV-ketel
Verwarmingssysteem
Centrale verwarming
Badkamervoorzieningen
Ligbad
Wasmachineaansluiting
Wastafel
Heeft een balkon
Ja
Heeft kabel-tv
Ja
Telefoonaansluiting aanwezig
Ja
Beschikt over een internetverbinding
Ja
Heeft rolluiken
Ja
Heeft schuur/berging
Ja
Heeft een dakraam
Ja

Kadastrale gegevens

Kadastrale aanduiding
Brunssum D 1919
Omvang
Appartementsrecht of complex
Eigendomsituatie
Eigen grond
Indexnummer
A6

Benieuwd wat jouw woning waard is?

Gratis waardebepaling