Onder bod:Pelgrimsweg 41, 6445 XN Brunssum - Foto
Onder bod
+44

Pelgrimsweg 41 6445 XN Brunssum € 269.000,- k.k.

  • Woonhuis
  • 3 kamers
  • 2 slaapkamers
  • 1 badkamers
  • Bouwjaar 1951
  • 224 m² perceeloppervlakte
  • 110 m² gebruiksoppervlakte
  • C Energielabel C

Beschrijving

Aanvragen voor bezichtigingen uitsluitend via info@zuyderhuys.nl! Wij nemen dan spoedig contact met u op.

Instapklaar gerenoveerd en uitgebouwd half vrijstaand woonhuis met aangelegde tuin, achtergelegen oprit en ruime stenen buitenberging!

Indeling:
Kelder:
Plafondhoogte: 1.88m
Provisieruimte.

Begane grond:
Hal/entree v.v. plavuizenvloer, Moderne betegelde toiletruimte met fonteintje, Meterkast (vernieuwd).
Ruime en knusse woonkamer v.v. fraaie plankenvloer en is v.v. airconditioning. Vanuit de woonkamer heeft men toegang tot de royale aanbouw v.v. airconditioning, plavuizenvloer en openslaande deur naar het fraai afgewerkte overdekte terras v.v. tegelvloer en aansluiting TV. Deze overkapping is eveneens middels een elektrisch rolluik geheel af te sluiten.
Halfopen keuken v.v. moderne hoogwaardige aanbouwinstallatie incl. inbouwapparatuur, te weten, vaatwasser, koel/vriescombinatie, inductiekookplaat, combi-oven en moderne wasemkap en v.v. plavuizenvloer.
Vanuit de aanbouw toegang tot de ruime bijkeuken v.v. plavuizenvloer, standplaats C.v-combi (Intergas HR 2014, eigendom) en aansluitpunt voor wasmachine en droger.
Fraai aangelegde onderhoudsvriendelijke tuin met ruime recente stenen buitenberging v.v. tegelvloer en elektra. De tuin heeft een achterom en een oprit op eigen terrein.

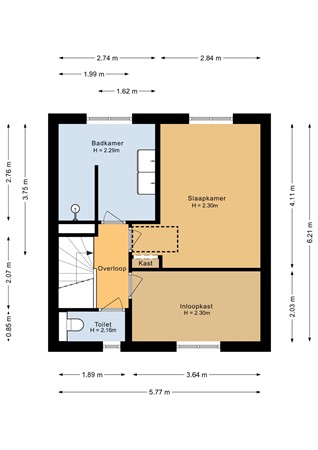
1e verdieping:
De gehele verdieping is voorzien van kunststof kozijnwerk met dubbele beglazing (incl. hor) en rolluiken.
Overloop.
Slaapkamer 1 AZ v.v. muurkast en TV aansluiting en v.v. airconditioning.
Slaapkamer 2 VZ.
Ruime betegelde luxe badkamer v.v. royale inloopdouche (v.v. stortdouche en thermostaat mengkraan), modern wastafelmeubel.
1 separate moderne toiletruimte v.v. vrij hangend toilet en inbouwreservoir.

2e verdieping :
Via vlizotrap te bereiken bergvliering v.v. laminaatvloer.

- Bouwjaar: 1951
- Woonopp: ca. 110 m2
- Bruto inhoud woonhuis: ca. 422m3
- Royale hoogwaardige aanbouw!
- Compleet v.v. dubbel glas en geheel v.v. kunststof kozijnwerk.
- C.v-combi installatie (eigendom, 2014, Intergas HR)
- Airconditioning 3x
- Zonnepanelen (eigendom, 17 stuks)
- Perceel: 224m2
- Vernieuwde ruime stenen buitenberging!

Ter bescherming van de belangen van zowel koper als verkoper, wordt uitdrukkelijk gesteld dat een koopovereenkomst met betrekking tot deze onroerende zaak eerst dan tot stand komt nadat koper en verkoper de koopovereenkomst hebben getekend (“schriftelijkheidsvereiste”).

Indien er in de woning huurtoestellen aanwezig zijn zoals CV-ketel, boiler, zonnepanelen, mechanische ventilatie etc. dan dienen deze door de koper te worden overgenomen.
De termijn die wordt opgenomen voor eventuele (overeengekomen) ontbindende voorwaarden (bv. Financiering) is in de regel 4 tot 6 weken na het sluiten van de mondelinge wilsovereenkomst.

De waarborgsom/bankgarantie is 10% van de koopsom. De koper dient deze 3 dagen ná het vervallen van de ontbindende voorwaarden bij de desbetreffende notaris te deponeren.

Koper is te allen tijde gerechtigd voor eigen rekening een bouwkundige keuring te (laten) verrichten dan wel andere adviseurs te raadplegen teneinde een goed inzicht te verkrijgen over de staat van onderhoud.

Deze informatie is door ons, Zuyderhuys Makelaardij met de nodige zorgvuldigheid samengesteld. Onzerzijds wordt echter geen enkele aansprakelijkheid aanvaard voor enige onvolledigheid, onjuist of anderszins, dan wel de gevolgen daarvan. Alle opgegeven maten en oppervlakten zijn indicatief.

Kaart

Kenmerken

Overdracht

Referentienummer
564
Vraagprijs
€ 269.000,- k.k.
Status
Onder bod
Aanvaarding
In overleg
Aangeboden sinds
Maandag 8 december 2025
Laatste wijziging
Maandag 15 december 2025

Bouw

Type object
Woonhuis, eengezinswoning, half vrijstaande woning
Soort bouw
Bestaande bouw
Bouwperiode
1951
Dakbedekking
Dakpannen
Type dak
Zadeldak
Isolatievormen
Dubbel glas
Spouwmuren

Oppervlaktes en inhoud

Perceeloppervlakte
224 m²
Woonoppervlakte
110 m²
Woonkameroppervlakte
56,2 m²
Keukenoppervlakte
6,37 m²
Inhoud
422 m³
Oppervlakte overige inpandige ruimten
6,85 m²
Oppervlakte externe bergruimte
12,22 m²
Oppervlakte gebouwgebonden buitenruimte
13,41 m²

Indeling

Aantal bouwlagen
3 (en 1 kelder)
Aantal kamers
3 (waarvan 2 slaapkamers)
Aantal badkamers
1 (en 1 apart toilet)

Locatie

Ligging
Aan rustige weg
Dichtbij openbaar vervoer
In woonwijk
Nabij school

Tuin

Type
Achtertuin
Oriëntering
Noord-oost
Heeft een achterom
Ja
Staat
Prachtig aangelegd

Energieverbruik

Energielabel
C

CV ketel

CV ketel
Intergas HR
Warmtebron
Gas
Bouwjaar
2014
Combiketel
Ja
Eigendom
Eigendom

Uitrusting

Aantal parkeerplaatsen
1
Warm water
CV-ketel
Verwarmingssysteem
Centrale verwarming
Keukenvoorzieningen
Inbouwapparatuur
Heeft airco
Ja
Heeft kabel-tv
Ja
Tuin aanwezig
Ja
Telefoonaansluiting aanwezig
Ja
Beschikt over een internetverbinding
Ja
Heeft rolluiken
Ja
Heeft schuur/berging
Ja
Heeft zonnepanelen
Ja

Kadastrale gegevens

Kadastrale aanduiding
Brunssum B 6110
Perceeloppervlakte
224 m²
Omvang
Geheel perceel
Eigendomsituatie
Eigen grond

Benieuwd wat jouw woning waard is?

Gratis waardebepaling